-
-
-
Tổng tiền thanh toán:
-
Bản vẽ thiết kế lăng mộ mộ đá
04/11/2019
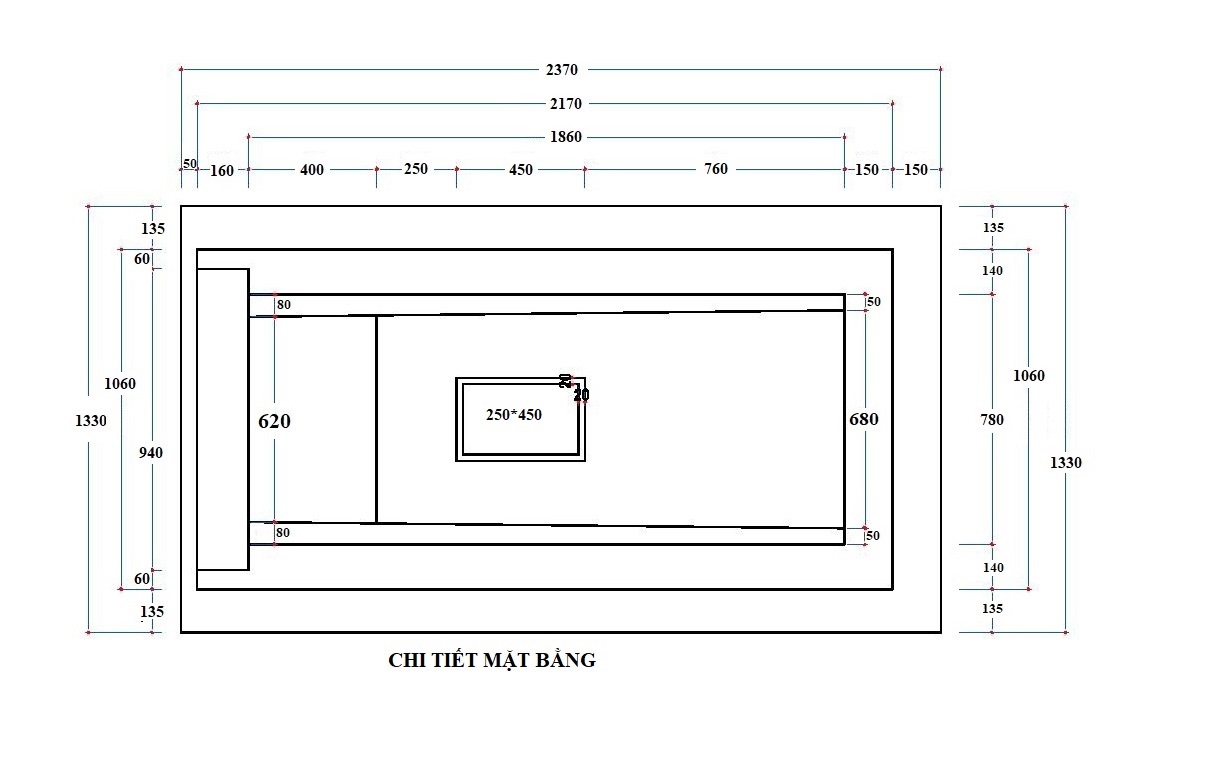
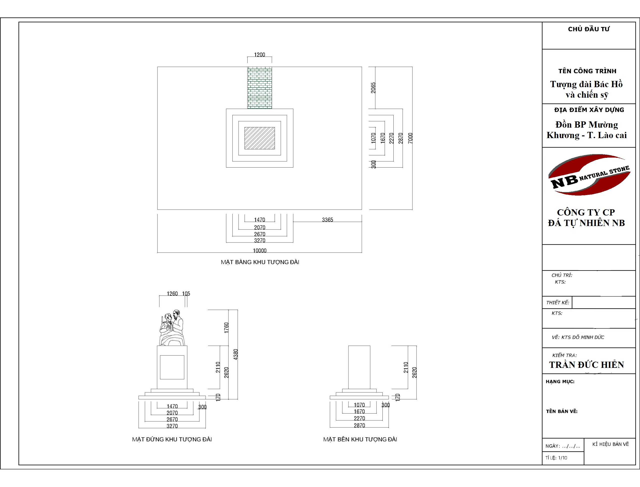
Bản vẽ thiết kế lăng mộ đá là một việc hết sức quan trọng phải làm trước khi tiến hành xây dựng mộ đá. Ngoài việc bản vẽ thiết kế giúp tránh những sai sót trong quá trình thi công nó còn giúp chúng ta tính toán để xây dựng kết cấu móng cho phù hợp với trọng lượng mộ, tiên lượng và điều chỉnh những kết cấu chưa hợp lý.

Hồ sơ thiết kế mộ, lăng mộ được coi như một phần trong bộ gia phả của dòng họ. Bản thiết kế bao gồm cả phần âm trạch mà bình thường khi hoàn thiện đã bị đất cát che khuất. Con cháu đời sau khi muốn sửa chữa hay cải tạo nghĩa trang cũng có đủ căn cứ để điều chỉnh tránh động chạm tới những phần huyệt mộ đã xây trước.

Hiện nay trên thị trường xuất hiện một số đơn vị nhỏ lẻ bán hàng qua hình ảnh, để giảm giá cạnh tranh các cơ sở này thường cắt giảm độ dầy các kết cấu chi tiết để giảm khối lượng đá dẫn tới chất lượng công trình bị ảnh hưởng. Bản thiết kế là cơ sở dữ liệu rất quan trọng để khách hàng có thể so sánh sản phẩm của các cơ sở khác nhau.

Ngoài tác dụng nói trên, bản thiết kế còn giúp đồng bộ/ ăn khớp giữa phần đá và phần móng tránh tình trạng móng xây dựng nhỏ hơn hoặc to hơn so với phần đá làm ảnh hưởng đến mỹ quan và thẩm mỹ cũng như tính chịu lực của toàn bộ công trình.

Địa chỉ thiết kế lăng mộ đá uy tín tại Hà Nội. Công ty cổ phần đá tự nhiên NB số 102 Thái Thịnh - Đống Đa - Hà nội, chúng tôi là một trong những đơn vị đi đầu về các công trình tâm linh bằng đá như: mộ đá, đồ thờ bằng đá, công trình kiến trúc đá, nhà thờ họ bằng đá, tượng đá, con giống đá, đá nội- ngoại thất, non bộ tiểu cảnh, sân vườn... Với hệ thống nhà xưởng khắp ba miền từ Hồ Chí Minh, Quy Nhơn, Đà Nẵng, Thanh Hóa, Ninh Bình và Hà Nội, chúng tôi luôn sẵn sàng tư vấn và thiết kế miễn phí, đáp ứng mọi yêu cầu của Quý khách. Niềm tin của Quý khách là món quà vô giá mà chúng tôi luôn cố gắng hết mình gìn giữ bằng cái "tâm" của người làm nghề. Hãy gọi cho chúng tôi khi Quý khách có nhu cầu mua các sản phẩm đá tự nhiên.
